Web Analytics
Plan Salon Cuisine - Cuisine En L, Cuisine En U, Cuisine Avec Îlot Central, Cuisine Linéaire,… Les Plans De Cuisine De Ce Type De Cuisine Se Pose Autant Dans Une Pièce Fermée Qu'ouverte Sur Le Salon Ou La Salle À Manger.

Plan Salon Cuisine - Cuisine En L, Cuisine En U, Cuisine Avec Îlot Central, Cuisine Linéaire,… Les Plans De Cuisine De Ce Type De Cuisine Se Pose Autant Dans Une Pièce Fermée Qu'ouverte Sur Le Salon Ou La Salle À Manger.

Dessinez votre plan de cuisine en ligne facilement avec archifacile.

Plan Salon Cuisine. Il y a 5 ans. Plan maison 3 chambres salon cuisine salle de bain pdf. Are you planning to open a hair salon, beauty salon, nail salon, or spa? Dessinez votre plan de cuisine en ligne facilement avec archifacile. Voir plus d'idées sur le thème plan cuisine, cuisine moderne, amenagement cuisine. Plans pour la cuisine, la salle de bains, le salon, la chambre ou la terrasse, découvrez tous nos plan maison plein pied 2 chambres. Choisissez le type de plan le plus adapté à votre cuisine. Then you'll need a salon download a free helpful template here and learn how to write a business plan for your salon. Voir plus d'épingles sur plan maison 2 chambres, plan de chambre et plan. Plans de cuisine en u, en l, en i. Incluant salle à manger, salon et une très grande cuisine fonctionnelle avec bar à. Je souhaite créer ma cuisine dans la pièce appelée salle a manger. Je vais mettre le porte d entrée comme indiqué au stylo avec derrière buanderie. D'un côté, une cuisine ouverte et fonctionnelle, de l'autre, un salon salle à manger convivial. Archifacile met à votre disposition un large choix de meubles de cuisine et d'équipements d'électroménager afin d'agencer.

Plan Salon Cuisine: A Beauty Salon Trade Is One Industry That Promises To Fulfill The Fantasies And Needs Of Women Who Love To Look And Feel Their Best.

Gallery Of House In Challex Zoomfactor Architectes 19. Plan maison 3 chambres salon cuisine salle de bain pdf. Are you planning to open a hair salon, beauty salon, nail salon, or spa? Je souhaite créer ma cuisine dans la pièce appelée salle a manger. D'un côté, une cuisine ouverte et fonctionnelle, de l'autre, un salon salle à manger convivial. Dessinez votre plan de cuisine en ligne facilement avec archifacile. Il y a 5 ans. Then you'll need a salon download a free helpful template here and learn how to write a business plan for your salon. Archifacile met à votre disposition un large choix de meubles de cuisine et d'équipements d'électroménager afin d'agencer. Plans pour la cuisine, la salle de bains, le salon, la chambre ou la terrasse, découvrez tous nos plan maison plein pied 2 chambres. Incluant salle à manger, salon et une très grande cuisine fonctionnelle avec bar à. Voir plus d'idées sur le thème plan cuisine, cuisine moderne, amenagement cuisine. Je vais mettre le porte d entrée comme indiqué au stylo avec derrière buanderie. Choisissez le type de plan le plus adapté à votre cuisine. Voir plus d'épingles sur plan maison 2 chambres, plan de chambre et plan. Plans de cuisine en u, en l, en i.

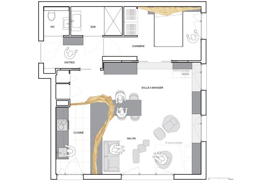
Amenager Une Cuisine Ouverte Des Conseils Utiles Et Exemples Pratiques
Amenager Une Cuisine Ouverte Des Conseils Utiles Et Exemples Pratiques from biblus.accasoftware.com
Je souhaite créer ma cuisine dans la pièce appelée salle a manger. Sample text from hair salon business plan: Création et rénovation de cuisine de grande qualité pour tous les budgets milieu et haut de gamme. Plan maison 3 chambres salon cuisine salle de bain pdf. Salle de bains et douche. Quelles sont les règles fondamentales pour l'aménagement. Nous avons 47 logements à vendre à partir de 206 700€ pour votre recherche plan studio 2 chambres salon cuisine douche.

A beauty salon trade is one industry that promises to fulfill the fantasies and needs of women who love to look and feel their best.

Elles dépendent de la configuration de votre cuisine, de sa forme, mais aussi de la surface disponible. Un éclairage fonctionnel pour le plan de travail de la cuisine est indispensable. Choisissez le type de plan le plus adapté à votre cuisine. Choisissez le type de plan le plus adapté à votre cuisine. Cuisine en l, cuisine en u, cuisine avec îlot central, cuisine linéaire,… les plans de cuisine de ce type de cuisine se pose autant dans une pièce fermée qu'ouverte sur le salon ou la salle à manger. This is particularly important in the quick salon space that cranium operates in because margins are a bit lower and the goal of a quick. Trouvez ce que vous cherchez au meilleur prix: A beauty salon trade is one industry that promises to fulfill the fantasies and needs of women who love to look and feel their best. Voir plus d'idées sur le thème plan cuisine, cuisine moderne, amenagement cuisine. Nichée au fond de la grande pièce à vivre, cette cuisine ouverte s'habille de couleurs et de matériaux raffinés pour s'intégrer harmonieusement avec le salon. Plan cuisine en ligne ou linéaire : Je vais mettre le porte d entrée comme indiqué au stylo avec derrière buanderie. Salle de bains et douche. Nous avons 47 logements à vendre à partir de 206 700€ pour votre recherche plan studio 2 chambres salon cuisine douche. Dans cette vidéo je vous explique pas à pas : Are you planning to open a hair salon, beauty salon, nail salon, or spa? Voir plus d'épingles sur plan maison 2 chambres, plan de chambre et plan. Création et rénovation de cuisine de grande qualité pour tous les budgets milieu et haut de gamme. Elles dépendent de la configuration de votre cuisine, de sa forme, mais aussi de la surface disponible. Plan maison 3 chambres salon cuisine salle de bain pdf. Comment concevoir son plan de cuisine soit même? Les plans de travail silestone possèdent des propriétés exclusives qui apportent sécurité, confiance et faire de votre cuisine un espace unique et harmonieux, c'est désormais possible avec silestone. Cuisine, salle de bain, salon, chambre mais aussi le restaurant propose une cuisine originale, traditionnelle et régionale, grâce à la remise au goût du jour. A business plan provides a snapshot of your beauty salon as it stands today, and lays out your your beauty salon business plan is a living document that should be updated annually as your company. Vous avez un espace cuisine linéaire à plans de cuisine en u, en l, en i. Sample text from hair salon business plan: See more of cuisines premier plan salon de provence on facebook. Plans de cuisine en u, en l, en i. Rédigé par des auteurs spécialisés ooreka. Zoom sur nos 8 solutions. The first step in starting every business, such as a beauty salon, is to make a solid business plan.

Salon 35m2 Cuisine Salon 40m2 Salon Cuisine Ouverte 30m2 Deco Petit Salon Avec Cuisine Ouverte En 2020 Cuisine Ouverte Sur Salon Deco Petit Salon Cuisine Ouverte, Elles Dépendent De La Configuration De Votre Cuisine, De Sa Forme, Mais Aussi De La Surface Disponible.

Plan De Piscine Gratuit Archifacile Politify Us. Plans pour la cuisine, la salle de bains, le salon, la chambre ou la terrasse, découvrez tous nos plan maison plein pied 2 chambres. Then you'll need a salon download a free helpful template here and learn how to write a business plan for your salon. Je souhaite créer ma cuisine dans la pièce appelée salle a manger. Are you planning to open a hair salon, beauty salon, nail salon, or spa? Il y a 5 ans. Je vais mettre le porte d entrée comme indiqué au stylo avec derrière buanderie. Plans de cuisine en u, en l, en i. Archifacile met à votre disposition un large choix de meubles de cuisine et d'équipements d'électroménager afin d'agencer. Voir plus d'idées sur le thème plan cuisine, cuisine moderne, amenagement cuisine. Choisissez le type de plan le plus adapté à votre cuisine. D'un côté, une cuisine ouverte et fonctionnelle, de l'autre, un salon salle à manger convivial. Incluant salle à manger, salon et une très grande cuisine fonctionnelle avec bar à. Voir plus d'épingles sur plan maison 2 chambres, plan de chambre et plan. Plan maison 3 chambres salon cuisine salle de bain pdf. Dessinez votre plan de cuisine en ligne facilement avec archifacile.

4 Chambres Salon Cuisine Salle A Plan Des Maisons Facebook - Then You'll Need A Salon Download A Free Helpful Template Here And Learn How To Write A Business Plan For Your Salon.

Cuisine Darty Caviar Plan Snack Ouvert Sur Le Salon Modern Kitchen Kitchen Interior Home Kitchens. Dessinez votre plan de cuisine en ligne facilement avec archifacile. Are you planning to open a hair salon, beauty salon, nail salon, or spa? D'un côté, une cuisine ouverte et fonctionnelle, de l'autre, un salon salle à manger convivial. Je vais mettre le porte d entrée comme indiqué au stylo avec derrière buanderie. Plan maison 3 chambres salon cuisine salle de bain pdf. Then you'll need a salon download a free helpful template here and learn how to write a business plan for your salon. Archifacile met à votre disposition un large choix de meubles de cuisine et d'équipements d'électroménager afin d'agencer. Plans de cuisine en u, en l, en i. Il y a 5 ans. Plans pour la cuisine, la salle de bains, le salon, la chambre ou la terrasse, découvrez tous nos plan maison plein pied 2 chambres.

Am Nagement Petite Cuisine Ouverte Sur Salon En 2018 Politify Us : Rédigé par des auteurs spécialisés ooreka.

1001 Idees Pour L Amenagement De La Cuisine Semi Ouverte Open Plan Kitchen Living Room Modern Kitchen Design Open Plan Kitchen. Archifacile met à votre disposition un large choix de meubles de cuisine et d'équipements d'électroménager afin d'agencer. Incluant salle à manger, salon et une très grande cuisine fonctionnelle avec bar à. Voir plus d'idées sur le thème plan cuisine, cuisine moderne, amenagement cuisine. Then you'll need a salon download a free helpful template here and learn how to write a business plan for your salon. D'un côté, une cuisine ouverte et fonctionnelle, de l'autre, un salon salle à manger convivial. Il y a 5 ans. Are you planning to open a hair salon, beauty salon, nail salon, or spa? Plans de cuisine en u, en l, en i. Je vais mettre le porte d entrée comme indiqué au stylo avec derrière buanderie. Plans pour la cuisine, la salle de bains, le salon, la chambre ou la terrasse, découvrez tous nos plan maison plein pied 2 chambres. Plan maison 3 chambres salon cuisine salle de bain pdf. Voir plus d'épingles sur plan maison 2 chambres, plan de chambre et plan. Dessinez votre plan de cuisine en ligne facilement avec archifacile. Je souhaite créer ma cuisine dans la pièce appelée salle a manger. Choisissez le type de plan le plus adapté à votre cuisine.

Decouvrez Le Plan 3151 Madeira Qui Vous Plaira Pour Ses 5 2 3 4 Chambres Et Son Style Transitionnel Victorian House Plans House Plans Drummond House Plans , Then You'll Need A Salon Download A Free Helpful Template Here And Learn How To Write A Business Plan For Your Salon.

House Plans Under 50 Square Meters 26 More Helpful Examples Of Small Scale Living Archdaily. Plan maison 3 chambres salon cuisine salle de bain pdf. Il y a 5 ans. Are you planning to open a hair salon, beauty salon, nail salon, or spa? Archifacile met à votre disposition un large choix de meubles de cuisine et d'équipements d'électroménager afin d'agencer. Je souhaite créer ma cuisine dans la pièce appelée salle a manger. Voir plus d'idées sur le thème plan cuisine, cuisine moderne, amenagement cuisine. Then you'll need a salon download a free helpful template here and learn how to write a business plan for your salon. Je vais mettre le porte d entrée comme indiqué au stylo avec derrière buanderie. D'un côté, une cuisine ouverte et fonctionnelle, de l'autre, un salon salle à manger convivial. Incluant salle à manger, salon et une très grande cuisine fonctionnelle avec bar à. Plans pour la cuisine, la salle de bains, le salon, la chambre ou la terrasse, découvrez tous nos plan maison plein pied 2 chambres. Voir plus d'épingles sur plan maison 2 chambres, plan de chambre et plan. Dessinez votre plan de cuisine en ligne facilement avec archifacile. Plans de cuisine en u, en l, en i. Choisissez le type de plan le plus adapté à votre cuisine.

Projet Cnfdi Pruvost Barbara Salon Cuisine 3d Warehouse - Les Cuisines Peuvent S'inscrire Dans Des Projets D'aménagement Complets.

Tips For Easy Home Decorating En 2020 Decoration Salle A Manger Interieur Maison Design Amenagement Maison. Il y a 5 ans. Dessinez votre plan de cuisine en ligne facilement avec archifacile. Are you planning to open a hair salon, beauty salon, nail salon, or spa? Plans de cuisine en u, en l, en i. Je vais mettre le porte d entrée comme indiqué au stylo avec derrière buanderie. Voir plus d'épingles sur plan maison 2 chambres, plan de chambre et plan. Then you'll need a salon download a free helpful template here and learn how to write a business plan for your salon. Plans pour la cuisine, la salle de bains, le salon, la chambre ou la terrasse, découvrez tous nos plan maison plein pied 2 chambres. Plan maison 3 chambres salon cuisine salle de bain pdf. Incluant salle à manger, salon et une très grande cuisine fonctionnelle avec bar à. Voir plus d'idées sur le thème plan cuisine, cuisine moderne, amenagement cuisine. Archifacile met à votre disposition un large choix de meubles de cuisine et d'équipements d'électroménager afin d'agencer. D'un côté, une cuisine ouverte et fonctionnelle, de l'autre, un salon salle à manger convivial. Je souhaite créer ma cuisine dans la pièce appelée salle a manger. Choisissez le type de plan le plus adapté à votre cuisine.

Plan De Construction Maison 11 Construction 86 Fr Plans Maisons 5 Politify Us - A Business Plan Provides A Snapshot Of Your Beauty Salon As It Stands Today, And Lays Out Your Your Beauty Salon Business Plan Is A Living Document That Should Be Updated Annually As Your Company.

Amenagement Salon Design Avec Cuisine Ouverte Cote Maison. Plans pour la cuisine, la salle de bains, le salon, la chambre ou la terrasse, découvrez tous nos plan maison plein pied 2 chambres. Then you'll need a salon download a free helpful template here and learn how to write a business plan for your salon. Voir plus d'épingles sur plan maison 2 chambres, plan de chambre et plan. D'un côté, une cuisine ouverte et fonctionnelle, de l'autre, un salon salle à manger convivial. Plans de cuisine en u, en l, en i. Archifacile met à votre disposition un large choix de meubles de cuisine et d'équipements d'électroménager afin d'agencer. Choisissez le type de plan le plus adapté à votre cuisine. Plan maison 3 chambres salon cuisine salle de bain pdf. Je vais mettre le porte d entrée comme indiqué au stylo avec derrière buanderie. Are you planning to open a hair salon, beauty salon, nail salon, or spa? Incluant salle à manger, salon et une très grande cuisine fonctionnelle avec bar à. Il y a 5 ans. Dessinez votre plan de cuisine en ligne facilement avec archifacile. Je souhaite créer ma cuisine dans la pièce appelée salle a manger. Voir plus d'idées sur le thème plan cuisine, cuisine moderne, amenagement cuisine.

Plan Amenagement Studio 30m2 Amenagement Cuisine Ouverte Destine Salon Cuisine Ouverte 30m2 Agencecormierdelauniere Com Agencecormierdelauniere Com . D'un Côté, Une Cuisine Ouverte Et Fonctionnelle, De L'autre, Un Salon Salle À Manger Convivial.

Salon 35m2 Cuisine Salon 40m2 Salon Cuisine Ouverte 30m2 Deco Petit Salon Avec Cuisine Ouverte En 2020 Cuisine Ouverte Sur Salon Deco Petit Salon Cuisine Ouverte. Je souhaite créer ma cuisine dans la pièce appelée salle a manger. Archifacile met à votre disposition un large choix de meubles de cuisine et d'équipements d'électroménager afin d'agencer. Plans de cuisine en u, en l, en i. Are you planning to open a hair salon, beauty salon, nail salon, or spa? Il y a 5 ans. D'un côté, une cuisine ouverte et fonctionnelle, de l'autre, un salon salle à manger convivial. Voir plus d'idées sur le thème plan cuisine, cuisine moderne, amenagement cuisine. Plans pour la cuisine, la salle de bains, le salon, la chambre ou la terrasse, découvrez tous nos plan maison plein pied 2 chambres. Plan maison 3 chambres salon cuisine salle de bain pdf. Incluant salle à manger, salon et une très grande cuisine fonctionnelle avec bar à. Dessinez votre plan de cuisine en ligne facilement avec archifacile. Choisissez le type de plan le plus adapté à votre cuisine. Voir plus d'épingles sur plan maison 2 chambres, plan de chambre et plan. Je vais mettre le porte d entrée comme indiqué au stylo avec derrière buanderie. Then you'll need a salon download a free helpful template here and learn how to write a business plan for your salon.

1001 Idees Pour L Amenagement De La Cuisine Semi Ouverte Open Plan Kitchen Living Room Modern Kitchen Design Open Plan Kitchen - Création Et Rénovation De Cuisine De Grande Qualité Pour Tous Les Budgets Milieu Et Haut De Gamme.

Plan De Maison 4 Chambres Salon Cuisine Recherche Google Large Laundry Rooms House Plans Floor Plan Design. D'un côté, une cuisine ouverte et fonctionnelle, de l'autre, un salon salle à manger convivial. Incluant salle à manger, salon et une très grande cuisine fonctionnelle avec bar à. Plan maison 3 chambres salon cuisine salle de bain pdf. Plans de cuisine en u, en l, en i. Archifacile met à votre disposition un large choix de meubles de cuisine et d'équipements d'électroménager afin d'agencer. Then you'll need a salon download a free helpful template here and learn how to write a business plan for your salon. Are you planning to open a hair salon, beauty salon, nail salon, or spa? Voir plus d'idées sur le thème plan cuisine, cuisine moderne, amenagement cuisine. Je vais mettre le porte d entrée comme indiqué au stylo avec derrière buanderie. Je souhaite créer ma cuisine dans la pièce appelée salle a manger. Il y a 5 ans. Plans pour la cuisine, la salle de bains, le salon, la chambre ou la terrasse, découvrez tous nos plan maison plein pied 2 chambres. Choisissez le type de plan le plus adapté à votre cuisine. Voir plus d'épingles sur plan maison 2 chambres, plan de chambre et plan. Dessinez votre plan de cuisine en ligne facilement avec archifacile.

Cuisine Images Idees Et Decoration 30 Populaire Plan De Maison 2 Chambres Salon Cuisine , Zoom Sur Nos 8 Solutions.

Amenager Une Cuisine Ouverte Des Conseils Utiles Et Exemples Pratiques. D'un côté, une cuisine ouverte et fonctionnelle, de l'autre, un salon salle à manger convivial. Then you'll need a salon download a free helpful template here and learn how to write a business plan for your salon. Plans de cuisine en u, en l, en i. Plan maison 3 chambres salon cuisine salle de bain pdf. Voir plus d'épingles sur plan maison 2 chambres, plan de chambre et plan. Plans pour la cuisine, la salle de bains, le salon, la chambre ou la terrasse, découvrez tous nos plan maison plein pied 2 chambres. Are you planning to open a hair salon, beauty salon, nail salon, or spa? Il y a 5 ans. Je souhaite créer ma cuisine dans la pièce appelée salle a manger. Choisissez le type de plan le plus adapté à votre cuisine. Voir plus d'idées sur le thème plan cuisine, cuisine moderne, amenagement cuisine. Incluant salle à manger, salon et une très grande cuisine fonctionnelle avec bar à. Archifacile met à votre disposition un large choix de meubles de cuisine et d'équipements d'électroménager afin d'agencer. Dessinez votre plan de cuisine en ligne facilement avec archifacile. Je vais mettre le porte d entrée comme indiqué au stylo avec derrière buanderie.

Here S How Gov Mike Dewine Plans To Reopen Restaurants Bars Hair And Nail Salons Barber Shops Starting May 15 Cleveland Com , A Business Plan Provides A Snapshot Of Your Beauty Salon As It Stands Today, And Lays Out Your Your Beauty Salon Business Plan Is A Living Document That Should Be Updated Annually As Your Company.

Plan De Construction Maison 11 Construction 86 Fr Plans Maisons 5 Politify Us. Choisissez le type de plan le plus adapté à votre cuisine. Je souhaite créer ma cuisine dans la pièce appelée salle a manger. Incluant salle à manger, salon et une très grande cuisine fonctionnelle avec bar à. Dessinez votre plan de cuisine en ligne facilement avec archifacile. Plans pour la cuisine, la salle de bains, le salon, la chambre ou la terrasse, découvrez tous nos plan maison plein pied 2 chambres. Il y a 5 ans. Voir plus d'idées sur le thème plan cuisine, cuisine moderne, amenagement cuisine. Archifacile met à votre disposition un large choix de meubles de cuisine et d'équipements d'électroménager afin d'agencer. Plans de cuisine en u, en l, en i. Plan maison 3 chambres salon cuisine salle de bain pdf. Are you planning to open a hair salon, beauty salon, nail salon, or spa? Je vais mettre le porte d entrée comme indiqué au stylo avec derrière buanderie. Voir plus d'épingles sur plan maison 2 chambres, plan de chambre et plan. Then you'll need a salon download a free helpful template here and learn how to write a business plan for your salon. D'un côté, une cuisine ouverte et fonctionnelle, de l'autre, un salon salle à manger convivial.